
刷到佛山这套小户型改造,真是眼前一亮。
九十平米上下的房子很多人住成了“杂物仓库”,可这对小夫妻愣是装出了呼吸感,通透明亮得像会发光。

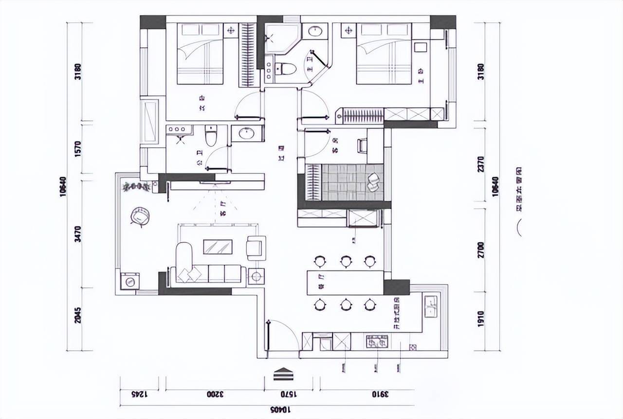
他们没堆材料搞豪华背景墙,拆了厨房隔墙、打通客厅阳台,整个空间瞬间舒展开。
米灰砖通铺配合无缝工艺,地面像一整张柔韧的牛皮纸延展开,视觉上生生多了二十平米既视感。

小户型最怕什么?
东西摊得到处都是。

他们家倒好,整面餐边柜把烤箱水壶藏得严严实实,餐具抽拉柜像变魔术似的嵌在岛台下。
你有没有留意过传统餐桌周围总堆着椅子?

岛台倒好,三面都能用,吃饭喝茶办公切菜一气呵成。
厨房台面清清爽爽,秘诀在U型布局和顶天立地柜,那些占地方的瓶瓶罐罐全都躲进墙里,难怪灶台干净得像酒店后厨。

卧室设计更透着智慧。
1米8大床往中间一搁,两边还能走人,秘密在衣柜乾坤大挪移。

传统户型衣柜挤在床侧过道只剩半米宽,他们改到床尾做整墙柜,主卫墙面再削个斜角,立马腾出换尿布的空间。
飘窗加个悬空妆台,镜子迎着光,梳妆打扮都带着仪式感。

谁说小房间放不下婴儿床?
过道这六十厘米就是为以后预备的温柔。

客厅没走寻常路。
直排沙发配素色背景墙,去掉了厚重电视柜,空间立马流动起来。

无主灯设计像把星星请进屋,光线从吊顶边缘流淌下来,比水晶灯实用百倍。
单眼皮吊顶层高完全不压抑,倒像给房间戴了条银边发箍。

那些砸钱做的复杂背景墙,过两年看腻了反倒像长在墙上的累赘。
日子久了会发现装修不是选最贵的材料而是用最对的思路。

通铺瓷砖省下过门石钱,岛台省下餐桌椅预算,水泥漆墙面比壁布还耐看。
把钱花在刀刃上不是抠门,是懂得收纳柜比雕花更动人,光线预留比吊灯更重要。

普通人家装房得学他们这份清醒:少跟风网红爆款,多琢磨自己每天怎么转身怎么抬手。
空间规划如写书法留白,看似省下的地方其实藏着自在。

进门不用摸黑找开关,厨房转身不撞墙,洗漱化妆不打架——这些琐碎顺了,日子自然润了。
家本就不是摆设展台,是能让疲惫骨头彻底放松的窝。

这套90来平米的小房子像块精致瑞士表,精工细作全藏在齿轮运转的流畅里。
装到心里去的房子,再小都是无价。
天金策略提示:文章来自网络,不代表本站观点。